Buch Am Sandhaus I Berlin
Buch Am Sandhaus I Berlin


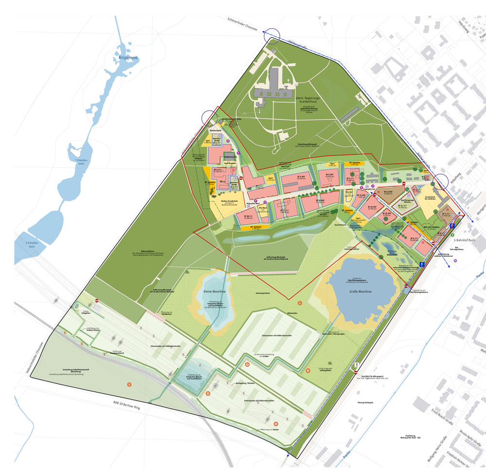
Auf einer Gesamtfläche von rund 57 Hektar soll am nördlichen Stadtrand von Berlin ein lebendiges, städtebaulich attraktives und sozial durchmischtes Quartier entwickelt werden, das Raum bietet für rund 2.400 bis 3.000 neue Wohnungen, ergänzt durch Kindertagesstätten und eine neue Grundschule. Gemeinsam mit dem umgebenden Landschaftsraum ist eine Entwicklung von ca. 190 ha angedacht. Die Grundlagen, das Leitbild und die Ziele für das Gutachterverfahren wurden vom Planungsteam Stadt Land Fluss und bgmr vorbereitet und das mehrstufige Verfahren begleitet. Außerdem wurden die Anforderungen an die Freiraumentwicklung, an den Umgang mit dem Naturraum sowie Regenwasserbewirtschaftung und Hitzevorsorge erarbeitet.
Ziel des Landschaftskonzepts ist es, im ‚Huckepack' der städtebaulichen Entwicklung die Aufwertung der bisher intensiv landwirtschaftlich genutzten Landschaft umzusetzen. Der Landschaftswasserhaushalt soll gestärkt, die Biodiversität gesteigert, Wald vermehrt und die ausgeräumte Offenlandschaft strukturreicher werden. Die Weite soll dabei gesichert werden, um Zielarten der Offenlandschaft wie der Feldlerche Raum zu geben. Gleichzeitig soll das Landschaftserleben für Anwohner*innen und Besucher*innen erhöht werden. Die Planung wurde in einen intensiven Bürgerbeteiligungsprozess eingebunden.
Leistung | Grundlagenermittlung, Entwicklungsziele und Leitbild, Betreuung städtebaulich-freiraumplanerisches Gutachterverfahren, Rahmenplan und Landschaftskonzept | |
Größe | 57 ha / 190 ha | |
Auftraggeberin | Senatsverwaltung für Stadtentwicklung, Bauen und Wohnen | |
Projektpartner:in | Stadt Land Fluss Städtebau und Stadtplanung; L.I.S.T. GmbH | |
Bildnachweis | © bgmr / Leon Giseke (1); Landschaftskonzept bgmr mit Montage des städtebaulichen Entwurfs von Studio Wessendorf / Grieger Harzer Landschaftsarchitekten (2) |